Projeto Elétrico de Subestação

Desenvolvemos projetos elétricos completos para instalações de entrada de energia elétrica de unidades consumidoras atendidas em tensão primária de distribuição, incluindo:

Subestação externa com transformador em poste com cabine de medição em tensão secundária

Subestação externa com transformador em pedestal e cabine de medição em tensão secundária

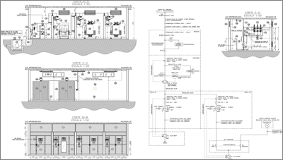
Subestação abrigada de medição em tensão secundária e transformação

Subestação abrigada de proteção, medição em tensão primária com ou sem transformação

Subestação abrigada compartilhada

Estudos de proteção e seletividade

Diagramas unifilares, trifilares e memoriais descritivos

Especificação de equipamentos e materiais conforme normas vigentes

Acompanhamento técnico e aprovação junto à concessionária

Projetos elaborados com precisão, atendendo requisitos técnicos, normativos e de segurança

FOTOS

SOLICITE SEU ORÇAMENTO